Welcome to DANJ Realty medical shared workspace in Princeton

Remodeled offices in historic Princeton, with ample parking, beautiful forested surrounding, and close to major office parks.

The healthcare landscape is evolving, and practitioners must adapt. Many healthcare providers do not want to be bought up by big hospital systems and prefer the flexibility to practice on their own terms. At the same time, The cost of quality medical space keeps rising, and practices are forced to sign long leases with restrictive terms.

Take a tour of our Princeton Office today!

Why use a shared medical space?

DANJ Realty provides an alternative to traditional medical space leasing. Instead of complicated lease terms, more space than you need and limited locations.  Instead, you can simply, set your own schedule, sign up with no long-term commitment, and still get all the benefits of a great office.

Flexibility & Convenience

Starting a business can be hard or growing one even more complicated.  You may only have enough time for 1 day a month, one day a week, or maybe several days a week.  We can accommodate whatever works for you, and you pay only for the time you need. No long-term lease is required.

The space is already built out for medical, we cover the maintenance, utilities, and facility management. Allowing you and your business to have reduced risk and overhead, so you can just walk in and focus on your practice.

Princeton Location

The Princeton Office is located just next to the Carnegie Center in Princeton.  Our offices are in a location that houses other offices and a large parking lot with an elevator for the handicap. 

Princeton Amenities

Exam rooms include sinks and basic medical equipment (including an exam table and oto/ophthalmoscope).  We can discuss other items if desired including massage tables. We also have a lab room with a locked medical refrigerator which will allow you to store some temperature-sensitive medical items if needed. 

Part-time clients can store equipment on-site when not in use within reason. Full-time clients can customize and decorate their space to their needs. 

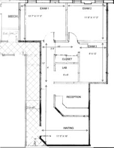
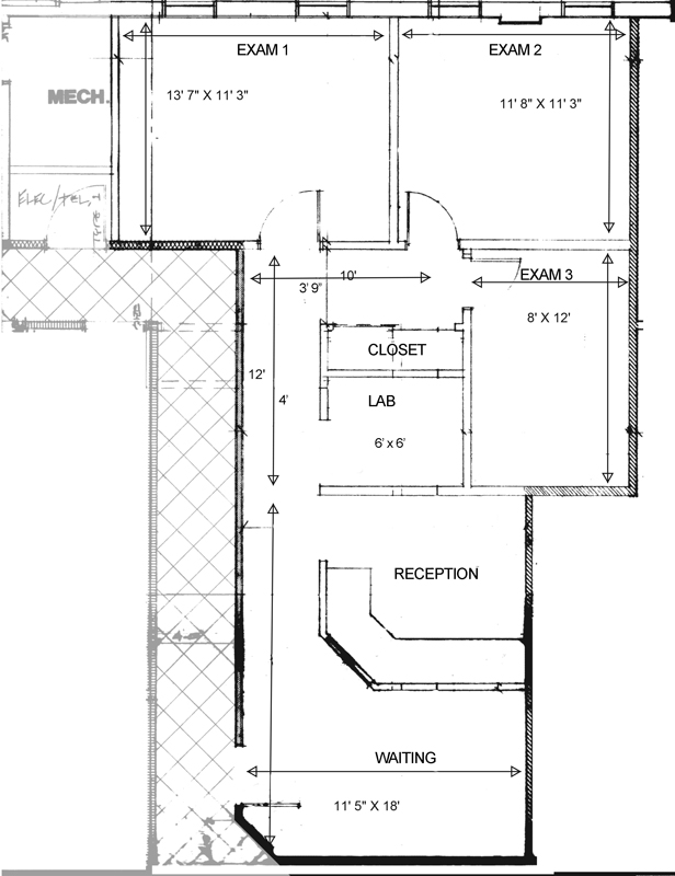
Floor Plan

12 Roszel Floor Plan B206

Location:

Pricing

Contact us, and we’ll build a package that suits your practice and your budget. Plans are start at $400/a day, with weekly and monthly discounts avialable.